Courtesy of Darlene Strang of RE/MAX Real Estate

403 10171 119 Street, Condo for sale in Wîhkwêntôwin Edmonton , Alberta , T5K 1Z1

 MLS® # E4483921

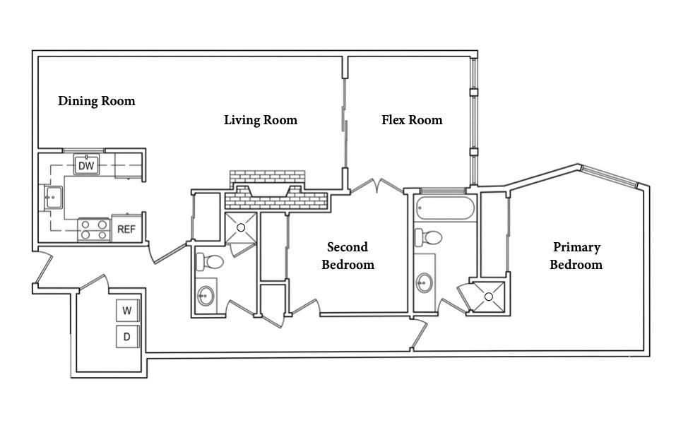
2 bedrooms

2 bathrooms

1,205 sqft

Sign up to View

Days on Market

Intercom Secured Parking Security Door Storage-In-Suite Vaulted Ceiling

Welcome home to this RARE TOP FLOOR, LOFT-STYLE condo defined by a generous OPEN SPACE & abundant NATURAL LIGHT with a layout seldom found in newer construction. This 1205 sq.ft. condo showcases soaring VAULTED CEILINGS with SOUTH EXPSOURE that fills your home with warmth and brightness, creating an airy openness unique from other condos. Thoughtfully designed for the comfort and functionality of modern living this home includes 2 bedrooms, 2 full bathrooms, a versatile flex space, large in-suite storage ...

Read More

Essential Information

  • MLS® #
    E4483921
  • Year Built
    1981
  • Property Type
    Residential
  • Property Style
    Single Level Apartment
  • MLS® #
    E4483921
  • Year Built
    1981
  • Property Type
    Residential
  • Property Style
    Single Level Apartment
  • MLS® #
    E4483921
  • Year Built
    1981
  • Property Type
    Residential
  • Property Style
    Single Level Apartment

Community Information

  • Area
    Edmonton
  • Neighbourhood/Community
    Wîhkwêntôwin
  • Condo Name
    Cardinal
  • Postal Code
    T5K 1Z1
  • Area
    Edmonton
  • Neighbourhood/Community
    Wîhkwêntôwin
  • Condo Name
    Cardinal
  • Postal Code
    T5K 1Z1
  • Area
    Edmonton
  • Neighbourhood/Community
    Wîhkwêntôwin
  • Condo Name
    Cardinal
  • Postal Code
    T5K 1Z1

Services & Amenities

  • Amenities
    Intercom
    Secured Parking
    Security Door
    Storage-In-Suite
    Vaulted Ceiling
  • Amenities
    Intercom, Secured Parking, Security Door, Storage-In-Suite, Vaulted Ceiling
  • Amenities
    Intercom
    Secured Parking
    Security Door
    Storage-In-Suite
    Vaulted Ceiling

Interior

  • Floor Finish
    Engineered Wood
    Linoleum
    Parquet
  • Goods Included
    Dishwasher-Built-In
    Dryer
    Hood Fan
    Refrigerator
    Stove-Electric
    Washer
    Window Coverings
  • Heating Type
    Baseboard
    Hot Water
    Natural Gas
  • Fireplace Fuel
    Wood
  • Storeys
    4
  • Basement
    None
  • Basement Development
    No Basement
  • Floor Finish
    Engineered Wood, Linoleum, Parquet
  • Goods Included
    Dishwasher-Built-In, Dryer, Hood Fan, Refrigerator, Stove-Electric, Washer, Window Coverings
  • Heating Type
    Baseboard, Hot Water, Natural Gas
  • Fireplace Fuel
    Wood
  • Storeys
    4
  • Basement
    None
  • Basement Development
    No Basement
  • Floor Finish
    Engineered Wood
    Linoleum
    Parquet
  • Goods Included
    Dishwasher-Built-In
    Dryer
    Hood Fan
    Refrigerator
    Stove-Electric
    Washer
    Window Coverings
  • Heating Type
    Baseboard
    Hot Water
    Natural Gas
  • Fireplace Fuel
    Wood
  • Storeys
    4
  • Basement
    None
  • Basement Development
    No Basement

Exterior

  • Lot/Exterior Features
    Golf Nearby
    Low Maintenance Landscape
    Public Transportation
    Schools
    Shopping Nearby
  • Roof
    Tar & Gravel
  • Foundation
    Concrete Perimeter
  • Lot/Exterior Features
    Golf Nearby, Low Maintenance Landscape, Public Transportation, Schools, Shopping Nearby
  • Roof
    Tar & Gravel
  • Foundation
    Concrete Perimeter
  • Lot/Exterior Features
    Golf Nearby
    Low Maintenance Landscape
    Public Transportation
    Schools
    Shopping Nearby
  • Roof
    Tar & Gravel
  • Foundation
    Concrete Perimeter

Additional Details

  • Property Class
    Condo
  • Site Influences
    Golf Nearby
    Low Maintenance Landscape
    Public Transportation
    Schools
    Shopping Nearby
  • Road Access
    Paved
  • Last Updated
    4/4/2026 4:2
  • Property Class
    Condo
  • Site Influences
    Golf Nearby, Low Maintenance Landscape, Public Transportation, Schools, Shopping Nearby
  • Road Access
    Paved
  • Last Updated
    4/4/2026 4:2
  • Property Class
    Condo
  • Site Influences
    Golf Nearby
    Low Maintenance Landscape
    Public Transportation
    Schools
    Shopping Nearby
  • Road Access
    Paved
  • Last Updated
    4/4/2026 4:2

$275,000

403 10171 119 Street

Schedule Tour
Contact Agent

$1253/month
Est. Monthly Payment
$
$
%
Learn More

Mortgage values are calculated by Redman Technologies Inc based on values provided in the REALTOR® Association of Edmonton listing data feed.